Mysiadlo Light Box
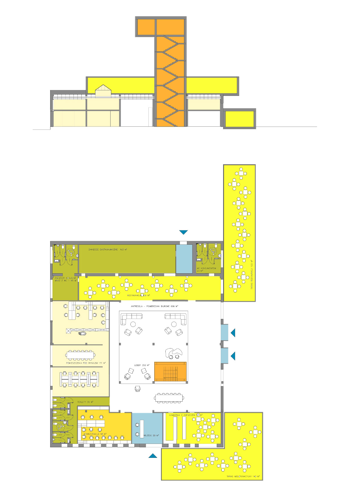
Large production hall was commisioned to be remodeled and turn into meeting point and the hub for developing area. It featured the tower, multifunctional space, conference rooms and service areas.
Large production hall was commisioned to be remodeled and turn into meeting point and the hub for developing area. It featured the tower, multifunctional space, conference rooms and service areas.